富士宮市源道寺町分譲地
- 分譲地
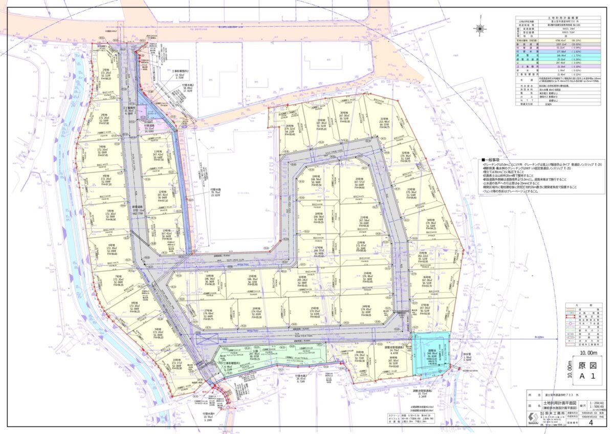
富士宮市源道寺町分譲地
JR身延線「源道寺」駅 徒歩4分
東小学校区
第一中学校区
| 面積 | |
|---|---|
| 価格 | |
| 用途地域 | 第一種中高層住居専用地域 |
| 建ぺい率 | 50% |
| 容積率 | 100% |
| 高さ制限 | |
| 設備 |
市営水道・個別合併浄化槽 東京電力・個別プロパンガス |
| 備考 |